2015

Theatre De Kampanje

Den Helder, NL

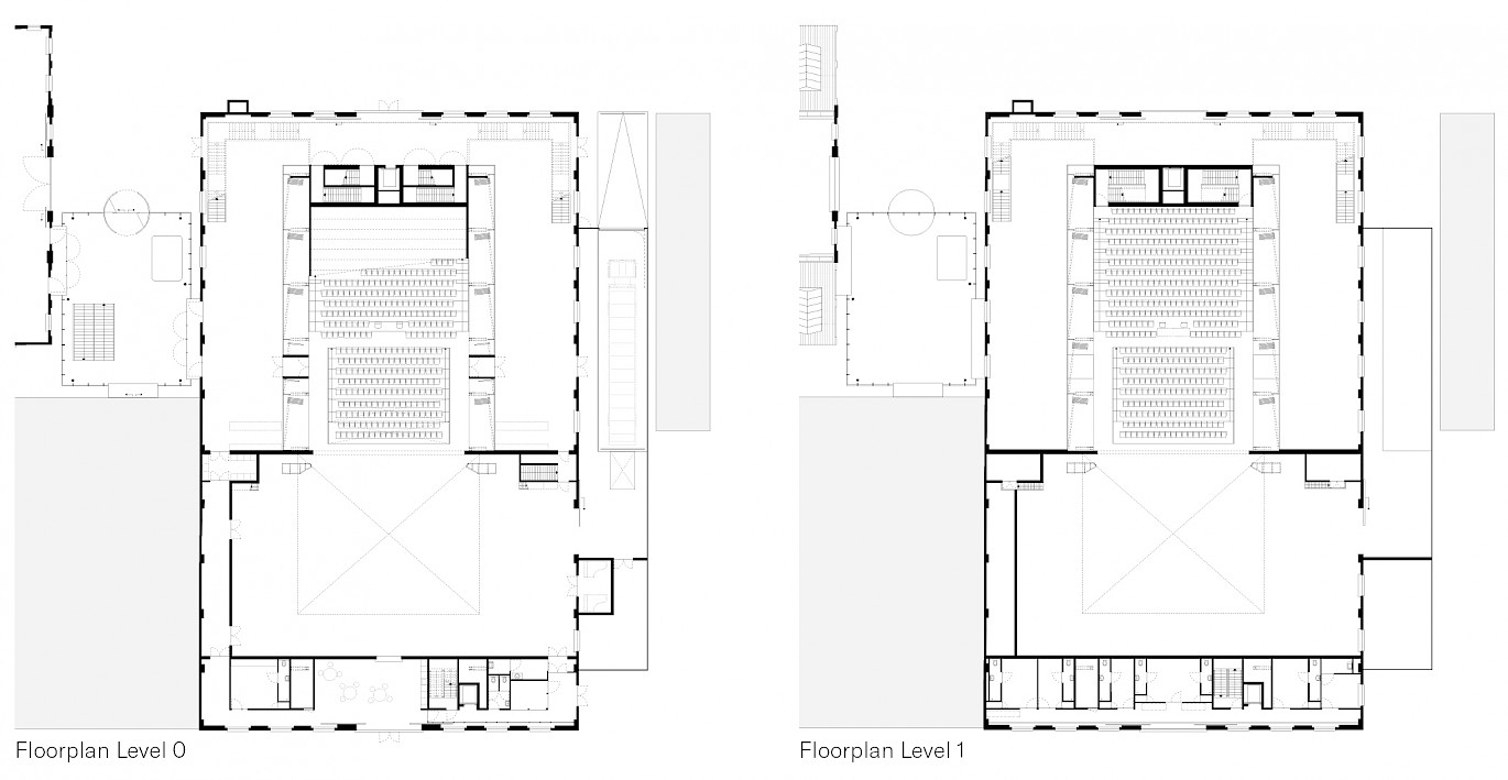
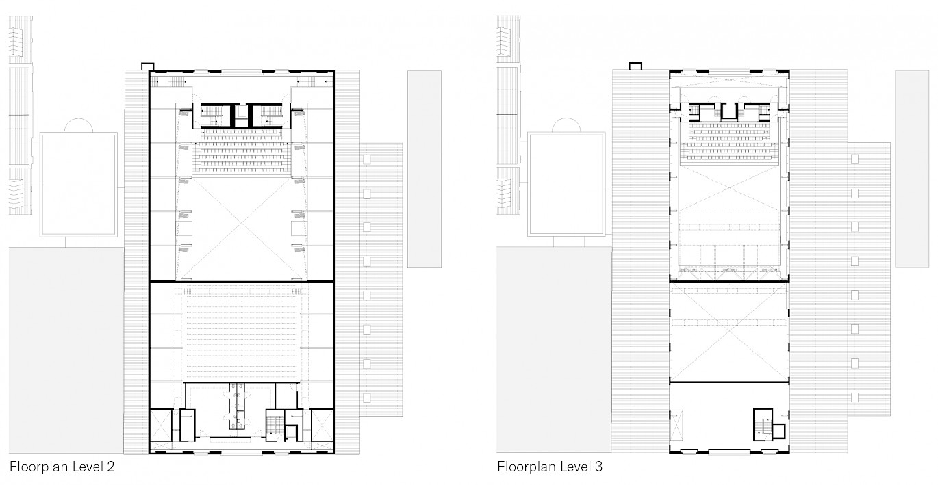
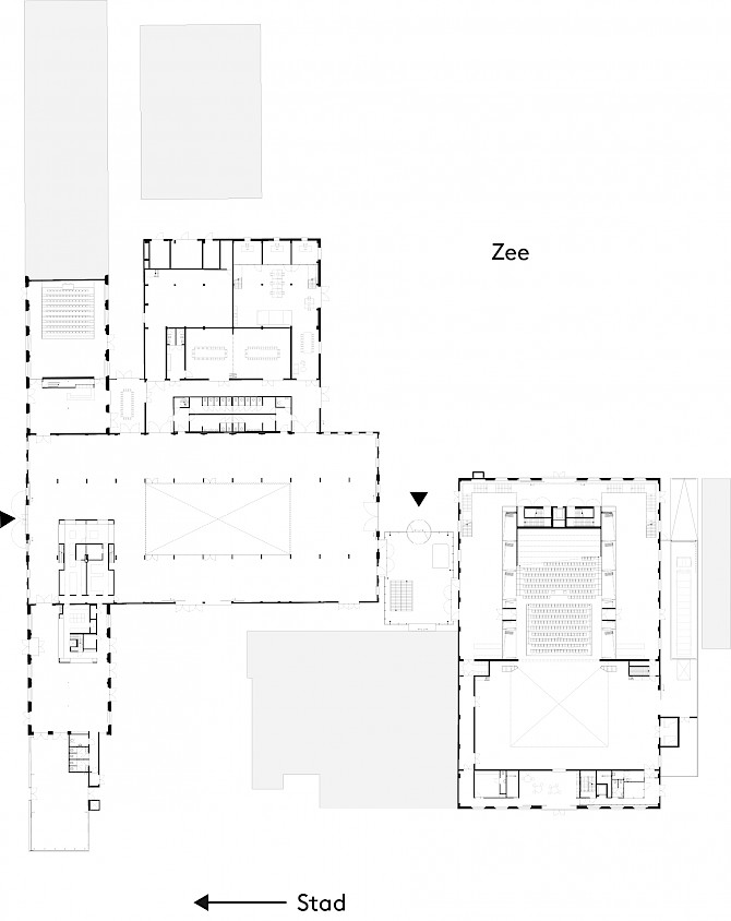
Schouwburg ‘De Kampanje’ is het nieuwe cultureel centrum en schouwburg van Den Helder gevestigd in de voormalige Rijkswerf ‘Willemsoord’. Met de transformatie heeft dit maritiem unieke ensemble na ruim 170 afgesloten te zijn geweest, een nieuwe publieke betekenis gekregen. Het programma, bestaande uit een theaterzaal, een multifunctionele zaal, kunstencentrum, kantoren en horecafuncties is zorgvuldig ingepast in de bestaande gebouwen van de voormalige Rijkswerf.

De inspiratie voor het ontwerp is gehaald uit de identiteit en karakter van de gebouwen, het samenspel van structuren, artefacten, openbare ruimte, dokken, water en de situering. Om het unieke karakter van het interieur en het ensemble te behouden is er in het ontwerp terughoudend en zorgvuldig omgegaan met aanpassingen en toevoegingen. Om de ruimtelijke belevenis van de prachtige monumentale hallen te waarborgen is de grote zaal uitgevoerd als een glazen theaterzaal.

Daarmee kenmerkt de nieuwe toevoeging zich door een transparantie die haaks staat op het introverte karakter van het monument zelf. Toch heeft het theater zich met een vanzelfsprekendheid in het monument genesteld en door het gebruik van glas ontstaan lange zichtlijnen, waardoor zien en gezien worden het leidende thema is geworden.

Deze feestelijkheid is geheel in traditie van het theater waar het sociale aspect vaak net zo belangrijk is als de voorstelling zelf. De kracht van de interventie schuilt in de precisie van de restauratie, in combinatie met de radicaliteit van de nieuwe toevoegingen.


Locatie: Willemsoord, Den Helder, Nederland
Fase: Voltooid
Functie: Cultuur
Programma: Theater, flexibele speelruimte, kunstcentrum, restaurant, kantoren
BVO: 8,000m2
Jaar opdracht: 2012
Bouwjaar: 2013 - 2015
Projectteam: Rui Duarte, Henk de Haas, Klaas Sluijs, Lorna Gibson, Gianna Bottema, Hesh Fekry, Raul Forsoni
Opdrachtgever: Willemsoord BV
Aannemer: M.J. de Nijs en Zonen B.V.
Constructeur: IMD, Rotterdam
Akoestiek en Engineering adviseur: LBP, Nieuwegein
Bouwfysica adviseur: LBP, Nieuwegein
Bouwmanagement adviseur: BBN Adviseurs
Installatieadviseur: Kropman Installatietechniek
Theateradviseur: PBTA
Foto's: Allard van der Hoek
©Van Dongen- Koschuch