2020

Ons Dorp

Arnhem, NL

Koschuch architects, Marc Koehler Architects en Buro Harro maakten in samenwerking met de ontwikkelcombinatie Van Wonen / BPD de winnende planvisie voor de herontwikkeling van woongemeenschap Het Dorp in Arnhem. Het Dorp wordt een wijk met aandacht voor leefbaarheid, zelfredzaamheid en toekomstbestendigheid. Groen- en natuurbeleving zijn de kernkwaliteiten van het plan waarmee vernieuwde betekenis wordt gegeven aan een wijk waar mensen met elkaar, met en zonder zorgbehoefte, samen leven in een groene, kwalitatieve en inclusieve woonomgeving.

Het Dorp ligt in de bosrijke omgeving van Arnhem-Noord, is bijna 60 jaar geleden ontstaan en is inmiddels een begrip geworden voor veel Nederlanders. Het was de eerste woongemeenschap in Nederland waar mensen met een beperking zelfstandig konden wonen. Het Dorp is inmiddels toe aan vernieuwing en sluit niet meer optimaal aan op de huidige behoeften van deze tijd. Daarbij is de zorgvraag aan verandering onderhevig evenals de vorm waarin zorg wordt verleend.

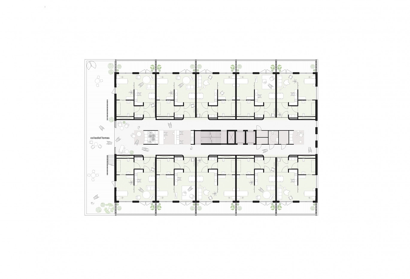
In onze visie wordt de zorglocatie volledig getransformeerd naar een groene woonplek dichtbij de stad en verbonden met de stad. Voor bewoners met een beperking verrijst een nieuw woonzorgconcept met 84 appartementen, met veel eigentijdse voorzieningen zoals een sportdaklandschap, gezondheidscentrum en een mobiliteitshuis. Een centrale ontmoetingsplek wordt het dorpsplein, waar buurtactiviteiten worden georganiseerd voor zorg- en buurtbewoners. Naast het zorgvastgoed worden er ca 110 grondgebonden woningen gerealiseerd rondom collectieve binnentuinen die door de toekomstige bewoners zelf ingericht kunnen worden. Verbinding en ontmoeting worden gestimuleerd in het bosrijke landschap, de collectieve binnentuinen en de gemeenschappelijke woonkamers.

Healing environment
In de uitwerking van het ontwerp voor de gebouwen en de openbare ruimte is omgevingspsychologie centraal gesteld, gericht op het verbinden van mens, omgeving, gedrag en welzijn. De focus van een healing environment ligt op de vijf elementen: natuur, frisse lucht, daglicht, rust en veiligheid. Zo speelt het zien en ervaren van natuur en frisse lucht, zowel op het terrein als in de gebouwen, een belangrijke rol. Ook worden er in de woonomgeving heldere oriëntatiepunten aangebracht.

Voor de gebouwen wordt gebruik gemaakt van natuurlijke materialen die opgaan in de omgeving en een vriendelijke en gastvrije uitstraling hebben. Bewoners worden zoveel mogelijk in contact met de natuur gebracht door de aanwezigheid van grote raampartijen, royale balkons en (dak)terrassen. De omgeving is goed toegankelijk met goede zichtlijnen en verlichting. Daarnaast speelt privacy, autonomie en bewegingsvrijheid een belangrijke rol; mensen kunnen kiezen tussen reuring en rust, in gebouw en omgeving. Er zijn diverse mogelijkheden voor het maken van ‘rondjes’, te voet, met de rolstoel of op de fiets. In de openbare ruimte worden sport en spel volop gefaciliteerd door natuurlijke speeltoestellen en groenzones die voor allerlei vormen van gebruik geschikt zijn.

Klimaatadaptief en circulair

Bij de herontwikkeling wordt zeer bewust omgegaan met energie en gebruik van natuurlijke materialen. De gebouwen zijn zo ontworpen dat ze flexibel zijn en aangepast kunnen worden aan de veranderende behoeften. Essentiële elementen zijn hernieuwbaar, hergebruikt of herbruikbaar. Gebouwen kunnen zodoende bij een veranderende vraag opnieuw ingedeeld worden. De gebouwen en woningen worden voorzien van een mix aan duurzame en geavanceerde energiesystemen met veel aandacht voor wooncomfort.

Naast een duurzame aanpak voor de gebouwen is er voor het openbaar gebied aandacht voor klimaatadaptatie. Hemelwater wordt lokaal opgevangen en geïnfiltreerd en er wordt 2-hectare groen toegevoegd aan het gebied. In en rondom de gebouwen ontstaan nieuwe nestmogelijkheden voor dieren. Het Dorp geeft zodoende betekenis aan de vraag naar een gezond en duurzaam leven en is daarmee klaar voor de toekomst.

Het Dorp

In 1962 werd met “Open Het Dorp” de aftrap gegeven voor een unieke ontwikkeling. Met Mies Bouwman als boegbeeld werden middels een grote inzamelingsactie in een 24-uurs radio- en televisiemarathon miljoenen guldens ingezameld. Met dat geld is Het Dorp gebouwd, de eerste woongemeenschap in Nederland voor mensen met een beperking. De realisatie van Het Dorp in Arnhem was wereldwijd een grootse stap in de emancipatie van mensen met een beperking. De uitgangspunten van toen zijn nog altijd actueel. Tegenwoordig speelt slimme inzet van technologie een grote rol in de samenleving, hierdoor kunnen ook mensen met een beperking zo zelfstandig mogelijk leven en meedoen. Met de herontwikkeling wordt Het Dorp opnieuw wat het altijd is geweest: een voorloper met baanbrekende ideeën over de zorg voor mensen met beperkingen.


Locatie: Arnhem, Nederland
Fase: Winnende tender / ontwerpfase
Functie: Gezondheidszorg / Wonen
Programma: 110 grondgebonden woningen, 84 zorgappartementen, ondersteunende functies, parkeerhuis en parkeer
BVO: 45,000m2
Jaar opdracht: 2020
Architecten: Koschuch Architects en Marc Koehler Architects
Koschuch Architects Projectteam: Maikel Supèr, Maurizio Brambilla, Voytech Stynbar
Marc Koehler Architects Projectteam: Markus Freigang, Marten Theeuwsen, Mai Henriksen, Marco Schlottmann, Femke van Lier, Annika Hetzel
Opdrachtgever / Ontwikkelaars: Bouwfonds property development (BPD) / VanWonen Vastgoedontwikkeling B.V.
Visualisaties: Proloog