2017

Musis Sacrum

Arnhem, NL

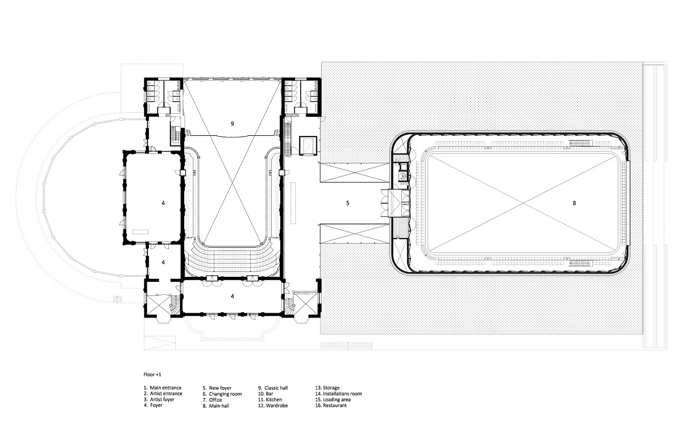
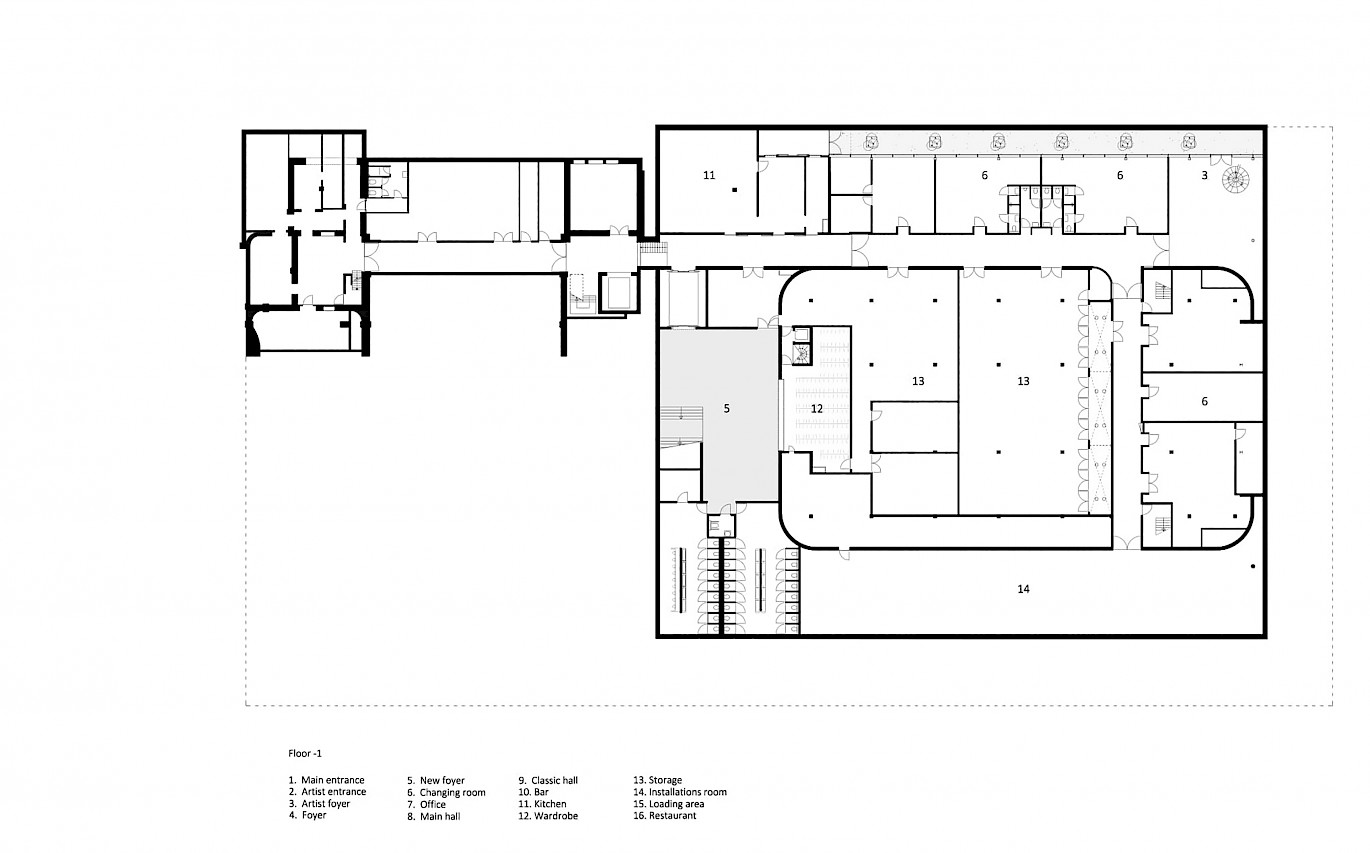
Sinds 1847 hebben zich zoveel activiteiten afgespeeld in en rond Musis Sacrum, dat het Musisgebied en het Musis-gebouw tot een uiteenlopende reeks van verschijningsvormen verworden. Het resultaat was een ingewikkeld ruimtelijk complex dat niet goed functioneerde met een gedateerde uitstraling. Desondanks is het gebouw geliefd in Arnhem en omstreken. Het project bestaat uit de renovatie van het bestaande monument en de sloop/nieuwbouw en uitbreiding van de grote zaal evenals de inpassing van ondersteunende functies en entreegebied.

Het ontwerp grijpt terug op de essentie van het Musis Sacrum: het genieten en ten gehore brengen van muziek in een uitmuntende akoestiek en aantrekkelijke groene omgeving. Het ontwerp is geïnspireerd op de sfeer en het karakter van het instituut Musis Sacrum, het lommerrijke Musispark en de identiteit van het Gelders Orkest en het MSSA zelf.

Door geen concessies te doen aan de akoestiek en de multifunctionaliteit kan het Musis Sacrum het vanzelfsprekende huis worden voor een breed scala aan voorstellingen, van symfonische muziek tot popmuziek en alles daartussenin.

De uitbreiding is vormgegeven als een uitnodigend en alzijdig paviljoen in het park dat het bestaande monument op respectvolle wijze aanvult en als zodanig in het landschap is opgenomen. De concertzaal heeft achter het podium een grote glazen gevel met uitzicht op het Musispark als ‘groen decor’, welke ook te openen is voor openluchtvoorstellingen.

Bestaand en nieuw worden door een gemeenschappelijke plint met elkaar verbonden, waarmee het Musis Sacrum een eigentijdse, nieuwe monumentaliteit krijgt die hoort bij een muzikaal programma van dergelijk niveau.


Locatie: Arnhem, Nederland
Fase: Voltooid
Functie: Cultuur
Programma: Concertgebouw, nieuwe concertzaal, renovatie van de oude concertzaal
BVO: 10,170m2 (nieuw 6,300m2 / bestaande renovatie 3,870m2)
Jaar opdracht: 2015
Bouwjaar: 2016 - 2017
Projectteam: Ralph van Mameren, Rui Duarte, Elisabetta Bono, Hesh Fekry, Maikel Super, Casper de Heer, Klaas Sluijs, Olga Moreno
Opdrachtgever: Gemeente Arnhem
Aannemer: Mertens Bouwbedrijf bv, Weert & Homij, Groningen
Constructeur: VandeLaar, Eindhoven
Akoestiek & Engineering adviseur: Peutz bv, Zoetermeer
Bouwfysica adviseur: Peutz bv, Zoetermeer
Installatieadviseur: Nelissen Ingenieursbureau bv, Eindhoven
Theateradviseur: Theateradvies bv, Amsterdam
Foto's: Bart van Hoek
©Van Dongen- Koschuch