2020

Elements

Amsterdam, NL

Het Amstelkwartier is binnenkort een nieuw iconisch gebouw rijker. Na de ontwikkeling van Haut en het QO hotel, is het alzijdige en duurzame gebouwontwerp ‘Elements’ door de gemeente Amsterdam geselecteerd als winnend ontwerp voor de realisatie in de nieuwe Amsterdamse stadswijk. In het ca. 70-meter hoge gebouw is ruimte voor 70 middeldure huurwoningen en 74 vrije sector koopwoningen, met commerciële voorzieningen op de begane grond en een groene bosachtige binnentuin en dakterras.

Elements maakt met zijn iconische, sculpturale vorm de skyline van het Amstelkwartier af

Het Amstelkwartier is stedenbouwkundig helder vormgegeven met duidelijke ‘Amstelkoppen’ en scherpe hoeken. Elements verrijkt de skyline van Amstelkwartier en Amsterdam met een elegante, solitaire, 70-meter hoge toren. Met zijn lichte, alzijdige, hoogstedelijke karakter relateert hij aan de overige hoogbouw en vormt een prominent en herkenbaar ijkpunt. Door zijn unieke sculpturaliteit verkrijgt hij tegelijkertijd een geheel eigen identiteit met meerdere uitnodigende gezichten, dat vanuit verschillende invalshoeken een veranderend perspectief laat zien. Scherpe hoeken en setbacks worden verzacht door de afronding van de horizontale lijnen en de speling van de lichtinval op de glanzende en matte, bronskleurige materialen.

Shaped by the Elements

Elements is niet op een traditionele manier ontworpen, maar ontwikkeld vanuit de verschillende aspecten die van invloed waren op de opgave, zoals de stedenbouwkundige envelop, de baan van de zon, daglichttoetreding, optimale energieopwekking, opvang van water, invloed van de wind en opname van groen voor meer biodiversiteit. Al die elementen zijn in een parametrisch opgezet 3D-model opgenomen in samenwerking met Arup.

Vervolgens zijn hiermee honderden varianten gegenereerd, waaruit via een serie van analyses uiteindelijk het optimaalste en daarmee ook duurzaamste model geselecteerd is. In het uiteindelijke ontwerp kennen de woningen, en de PV-panelen die in de balkonranden zijn opgenomen, een optimale bezonning. Ook is het windklimaat op straat, op de daktuin en in de binnentuin geoptimaliseerd.

Energieleverend en grote CO2-reductie in materialisering

Elements wordt een energieleverende woontoren: dus van BENG naar ENG. Met de zonnepanelen geïntegreerd in de balkonranden wordt meer dan 100% van de energiebehoefte duurzaam opgewekt. Nog veel innovatiever is de hybride houten-stalen-betonnen draagcontructie. Daarmee moet meer dan 50% bespaard worden op de CO2-last van de toegepaste materialen. Door in de hoogte om de zes meter een betonnen vloer te maken, met daartussen houten vloeren, is er ruimte gecreëerd voor dubbelhoge woningen waarbij de verbinding tussen de twee lagen daarvan ook nog eens flexibel en aanpasbaar is. Die houten vloer kan immers vrij eenvoudig voorzien worden van sparingen of juist extra vloervlakken. Door bovendien overal een radicale scheiding te maken tussen drager en inbouw, tussen draagconstructie en installaties plus afwerking, zijn de woningen richting de toekomst ook veel flexibeler.

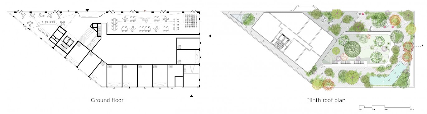
Voor de onderbouw van de woontoren is door Boom Landscape een dakpark en een binnentuin ontworpen met veel groen en bomen in de volle grond. Daar bovenop wordt de entree aan de zijde van Bella Vistapark nog voorzien van een wintertuin met subtropische planten. Daarmee moet dat echt een ontmoetingsplek worden voor de bewoners van het gebouw en de buurt.

Aan de parkzijde van het gebouw komt verder ruimte voor commercieel programma, zoals coworking, dat ‘s avonds kan verkleuren naar meer maatschappelijk programma. Op de kop van het gebouw komt ‘Bar Seasons’ waarvan de gevel bij goed weer helemaal opengeschoven kan worden. Zo reageert Elements optimaal op de omgeving door de buren in hun waarde te laten en te kiezen voor een relatie op goede voet.

Inclusieve woontoren met unieke woonproducten

In Elements komt een brede mix van woningtypologieën. Enerzijds omdat we hiermee aan de vraag van vele Amsterdammers tegemoetkomen. Anderzijds omdat veel verschillende woningtypes diverse doelgroepen aantrekken, die met elkaar een inclusieve woongemeenschap vormen. Op deze gewilde locatie bouwen we grote en kleinere woningen, huur en koop, met hoge kwaliteit en eigen buitenruimtes. Bijzonder is dat de studio’s (middensegmet huur) mooi zijn gesitueerd tussen de koopwoningen en dat we de dubbelhoge loft aanbieden op grote hoogte met kopersopties voor de plattegronden, uniek in Nederland.


Locatie: Amsterdam, Nederland
Fase: Winnende tender / ontwerpfase (bouw start naar verwachting in het derde kwartaal van 2021)
Functie: Wonen / Multi
Programma: 70 huurappartementen, 74 vrije sector woningen, commerciële voorzieningen
BVO: 14,800 m2
Jaar opdracht: 2020
Bouwjaar: 2021 -
Competitie team: Maikel Supèr, Rui Duarte, Maurizio Brambilla, Ralph van Mameren, Casper de Heer, Danai Tamiolaki, Luca Vatteroni, Milos Dubljevic
Projectteam: Maikel Supèr, Ralph van Mameren, Rui Duarte, Maurizio Brambilla, Danai Tamiolaki, Milos Dubljevic, Jaco de Koning
Opdrachtgever / Ontwikkelaars: Kondor Wessels
Constructeur: Arup
Conceptontwikkelaar: Tenderboost
Landschaps architect: Boom Landscape
Visualisaties: Beauty & the bit